「3人家族で2LDKの家に暮らす」ことは現実的で、間取りの工夫によっては狭さを感じることなく、コンパクトだからこそ掃除がしやすく使い勝手の良い住まいを建てることが可能です。
今回は、お子様の成長に合わせた2LDKの個室の使い方や「3人家族向け2LDK」の間取り事例をご紹介します。
3人家族で快適に暮らせる2LDKの間取りをつくるポイントも解説しますので、ぜひ家づくりにお役立てください。
<コラムのポイント>
- 3人家族で2LDKの家に住む場合、ご夫婦の寝室と子供部屋として個室を使うことが一般的です。
- お子様の年齢に合わせて個室の使い方を柔軟に変えられる間取りを採用することで、2LDKの家の住み心地を良くできます。
- ライフスタイルの変化を想定した提案をしてくれる、設計力のある実績豊富な住宅会社への相談がおすすめです。
3人家族で2LDKの住まいを検討中の方は、群馬・伊勢崎の「ハグデザイン」へお気軽にご相談ください。
実績豊富な一級建築士がライフスタイルに合わせた住まいをご提案します。
▷【相談無料】「3人家族が暮らしやすい住まい」に関するご相談はこちら
Contents
3人家族なら2LDKの間取りでも暮らせる

2LDKとは、LDKのほかに個室が2部屋ある間取りのことです。
ご夫婦とお子様1人の3人家族の場合、間取りの工夫によっては2LDKの間取りでも十分快適に暮らすことができます。
家族のライフスタイルや成長に合わせて部屋の使い方を工夫することがポイントです。
お子様の成長に合わせた2LDKの個室の使い方

お子様の成長に合わせた2LDKの住まいのレイアウトと、個室の使い方を考えていきましょう。
赤ちゃん(0~1歳)
0~1歳の小さな赤ちゃんがいるご家庭は、2部屋を次のように活用すると便利です。
- ・ご夫婦の寝室を2つに分ける
- ・1部屋はご家族の寝室、もう1部屋は赤ちゃんのプレイルーム
- ・1部屋はご家族の寝室、もう1部屋は夫婦の趣味・仕事スペース
お子様が赤ちゃんの頃は夫婦の寝室を分けることで、休む日と夜間対応する日を交代でき、互いにしっかり休むことができるため育児の負担を軽減できます。
また、1部屋はご家族の寝室として使い、もう1部屋はプレイルームやテレワークスペースにしても便利です。
LDKと個室が離れている場合、赤ちゃんのお昼寝中やご家族の仕事中でも生活音が気になりにくく、お互い快適に過ごせます。
幼児(2~5歳)
幼児期のお子様がいるご家庭におすすめな使い方をご紹介します。
- ・1部屋はご家族の寝室、もう1部屋はお子様の遊び場
- ・1部屋はご家族の寝室、もう1部屋はご家族の収納部屋
おもちゃが増えてくる幼児期は、空いている1部屋をお子様の遊び場として活用すると便利です。
キッズデスクや大きめの遊具も置けるため、LDKがすっきり整います。
「遊ぶのはリビングで」と考えている方は、1部屋をご家族の収納部屋として使い、季節物を置いたりファミリークローゼットにする方法もおすすめです。
小学生(6~12歳)
小学生のお子様と快適に暮らせる個室の活用方法をご紹介します。
- ・1部屋はご家族の寝室、もう1部屋は家族共有のスペースに
- ・1部屋はご夫婦の寝室、もう1部屋は子供部屋
小学校低学年には、子供部屋にベッドを置いてお子様が1人で寝るというご家庭もありますが、実際には幼児期と同じような使い方をするケースが多いです。
中~高学年に進むにつれて、ご両親と個室で宿題をしたり本を読んだりする習慣をつけておくと、中学年以降の自室学習への移行がスムーズになります。
中学生・高校生(13~18歳)
お子様が中学生・高校生になると、勉強や趣味、ご友人と遊ぶなど自室を使うタイミングが増えてきます。
そのため、1部屋はご夫婦の寝室、もう1部屋は子ども部屋として使うご家庭がほとんどです。
思春期はプライバシーを大切にしたい時期でもあるため、自分だけの空間を確保してあげることで、安心して過ごせる環境づくりにつながります。
3人家族が暮らしやすいレイアウトの2LDKの間取り

3人家族が暮らしやすいレイアウトを採用した2LDKの間取りをご紹介します。
①個室とLDKにカウンターを造作した住まい

20畳を超えるゆとりのあるLDKを採用した事例です。
ダイニングの後ろ側にカウンターを造作し、家事をしながらお子さまが遊んだり勉強したりする様子を見守れるようにしました。

2階の各個室にもコンパクトなカウンターを設けています。
お子様が小さな頃はご夫婦それぞれのワークスペースや趣味部屋としても活用しやすい間取りです。
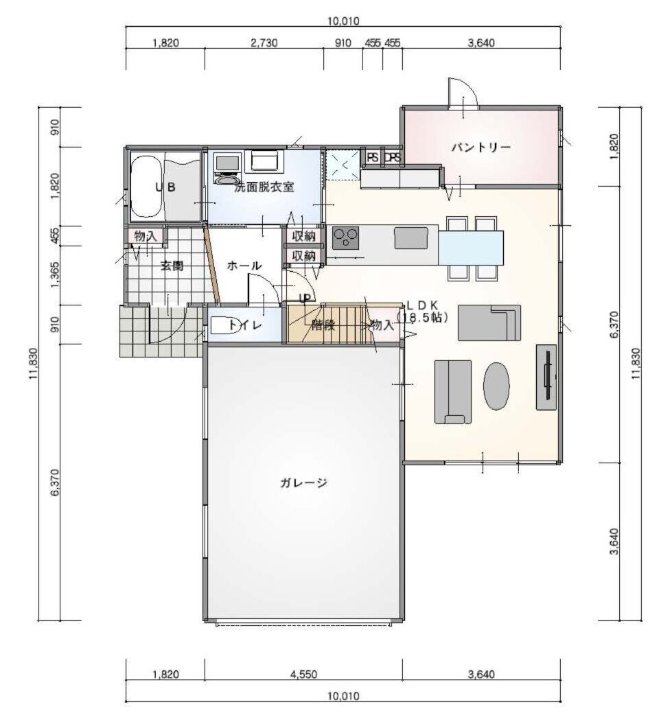
②大きな吹き抜けでコミュニケーションが取りやすい2LDKの間取り

リビング横にスタディスペースを設けたL字型LDKです。
ガレージに出入り口をつけ、車を降りてそのままキッチンへ行ける便利な動線を確保しました。

リビングには大きな吹き抜けがあり、各階にいるご家族に声かけしやすい間取りです。
2階のホールを広めに設け、家族共有の本棚を置いたり室内干ししたりなど、多用途で活用できるようにしました。
▷関連コラム:【ガレージハウス】間取り図17選・おしゃれな実例を大公開|平屋・2台・3台も
③広めの個室で快適性を高めた住まい

縦長の敷地に立つ2LDKの間取りです。
LDKそれぞれにカウンターを造作したため、2階の自室に行かなくてもご家族それぞれの時間を過ごせます。

2階の個室は広めにして快適性を高めました。
南側の部屋は室内窓を採用し、吹き抜けを通じて1階の家族とコミュニケーションを取れるようにしています。
④将来3LDKにもできる2部屋の個室がある間取り

キッチンを中心とした回遊動線がある住まいです。
パントリーはゆとりある広さを採用し、屋外へ行ける動線も確保しました。

2階の1部屋は広めにして将来的に仕切れるようにしました。
あらかじめドアと収納をそれぞれ2つずつ設け、中央に壁を立てておくことで、将来のリフォームに対応しやすくしています。
⑤多用途で使えるLDKとつながる個室がある平屋
LDKと直結する個室がある平屋の住まいです。
各部屋の出入り口を2ヵ所にすることで、寝室や子ども部屋としての使い方以外にも活用できるようにしました。
- ・南側の部屋:リビングから目の届く空間として、お子様のお昼寝スペースや遊び場に
- ・北側の部屋:水まわりとつながるため、室内干しのスペース・家事の合間の休憩部屋に
お子様の成長に合わせて用途を変えられる、可変性が高い個室のレイアウトです。
3人家族で2LDKの住まいを検討中の方は、群馬・伊勢崎の「ハグデザイン」へお気軽にご相談ください。
実績豊富な一級建築士がライフスタイルに合わせた住まいをご提案します。
▷【相談無料】「3人家族が暮らしやすい住まい」に関するご相談はこちら
3人家族で快適に暮らせる2LDKの間取りをつくるポイント

2LDKでも3人家族で快適に暮らせる間取りにするポイントをご紹介します。
お子様の成長に合わせた具体的な用途を考えておく
お子様の年齢によって個室の使い方は大きく変化します。
- ・何歳から子ども部屋として使うか
- ・未就学期はどのような使い方をするか
- ・お子様が巣立った後の用途
このような内容を家づくりのタイミングで具体的に考えておくと、部屋の配置や広さを決めやすくなります。
お子様が大学進学のタイミングで巣立った場合、自室として活用するのは小学生中学年~高校生の約10年間です。
そのため、子ども部屋として使わない期間も有効活用できる方法を検討し、間取りを考えることが大切です。
プライバシーとつながりのバランスを考える
2LDKの間取りを採用する場合は、プライバシーとつながりのバランスを考えましょう。
LDKとつながる個室はお子様の様子が見守りやすいですが、思春期になると嫌がられるケースもあります。
LDKと隣接させる部屋とあえて距離を設けた部屋をつくり、お子様の年齢に合わせて寝室と子ども部屋を入れ替えられる、柔軟性のある間取りもおすすめです。
各空間の収納計画をしっかり立てる
部屋数が少ない間取りでも収納計画をしっかり立てることで、住まいの快適性は大きく変わります。
例えばファミリークローゼットを設ける場合でも、お子様の成長を考慮して、各部屋にも十分な収納を確保しておくと安心です。
個室はクローゼットだけでなく、高さを調整できる可動棚なども設けることで、おもちゃや学習用品がすっきり片付きます。
▷関連コラム:注文住宅の収納アイデア13選|間取り図・実例をもとに使いやすい収納の考え方を解説
LDKにフリースペースがあると便利
2階建ての場合は各階でコミュニケーションが取りにくく、目線も届きにくいため、1階にフリースペースがあると便利です。
- ・リビングにカウンターを設ける
- ・畳コーナーを採用する
- ・スキップフロアを設ける
- ・ヌックをつくる
お子様が小さい頃は遊び場や勉強スペースとして使え、子ども部屋を使うようになったら、ご夫婦の趣味空間やくつろぎスペースにもなります。
LDKの中に複数の居場所をつくることで、「3つ目の部屋」のように使えるような空間として活躍するはずです。
将来の家族構成の変化も見据えておく
将来の家族構成の変化も見据えて間取りを検討することがポイントです。
ご家族やペットが増えたりご両親が同居したりと、暮らしの中で変化が訪れるご家庭も少なくありません。
- ・子供部屋や寝室を広めにして仕切れるようにしておく
- ・リビングに3~4畳程度のスペースを設けておく
部屋として仕切らず広さにゆとりを持たせることで、暮らしの選択肢が広がり、いざという時は柔軟に対応できます。
まとめ
3人家族の場合、2LDKの住まいでも間取りの工夫によっては快適に暮らすことが可能です。
お子様の成長に合わせた2部屋の使い方を具体的に考え、どのタイミングでも最大限に活用できる広さやレイアウトを検討しましょう。
また、ライフスタイルの変化も見据えた提案をしてくれる、設計力のある住宅会社へ相談することも大切です。














