生活・家事動線の良い南玄関の間取りは、「明るく開放的なデザイン性」と「家事を楽にする実用性」を両立させたい方にぴったりです。
そこで今回は、南玄関の間取りの特徴をご紹介し、暮らしの質を高める生活・家事動線のアイデアを解説します。
南玄関の間取り図や実例をもとに動線のポイントもお伝えしますので、ぜひ最後までご覧ください。
<コラムのポイント>
- 南玄関の間取りは明るく開放的な玄関をつくりやすく、LDKとの効率的な動線をつくれる点が特徴です。
- 回遊動線・洗濯動線・お出かけ動線など、家事や生活の効率を高める動線を取り入れることで、暮らしやすい住まいになります。
- お客様の暮らしをしっかりとヒアリングした上で、南玄関の配置を活かした効率的な動線を提案してくれる、実績豊富な住宅会社への相談をおすすめします。
家事動線の良い南玄関の間取りを採用したいなら、群馬・伊勢崎の「ハグデザイン」へお気軽にご相談ください。
実績豊富な一級建築士がお客様の暮らしに合わせた間取りをご提案します。
▷【相談無料】「生活・家事動線の良い南玄関の間取り」に関するご相談はこちら
Contents
南玄関の間取りの特徴

▷施工事例:群馬県藤岡市新築注文住宅|家族と事務所スペースの両立。性能も優れた、快適な住まい。
南玄関とは、南向きに玄関が配置された間取りのことです。
南西・真南・南東など細かな配置にバリエーションがありますが、いずれも玄関ドアは南に面しています。
南玄関のメリット・デメリットを確認しましょう。
メリット
南玄関の間取りを採用するメリットをご紹介します。
- 明るい玄関をつくれる
- LDKとの動線を短くしやすい
- 大きな窓をアクセントにした外観にできる
南玄関は日差しが入る時間帯が長いため、明るく開放的な玄関をつくりやすいです。
また、日当たりを重視するLDKも南面に配置するケースが多いため、無駄な廊下をつくらずにリビング・キッチンと玄関の動線を確保できます。
また、リビングやダイニングにある大きな窓をアクセントにした、存在感のある外観にできるのも南玄関の特徴です。
デメリット
南玄関の間取りには次のようなデメリットがあります。
- 南面に配置できる居住スペースが狭まる
- 玄関の温度が上昇しやすい
- プライバシーが確保しにくい
- 庭の安全対策が必要になるケースも
間口の狭い南道路の土地の場合、玄関が南側にあることで日当たりの良い居住スペースが確保しにくくなります。
また、南道路に面する建物は、大きな窓や庭が道路側に配置されるケースも少なくありません。
そのため、目隠しによってプライバシー性を高めたり、庭周りにフェンスを設けて安全性を確保したりする工夫が必要です。
▷施工事例:「群馬県の夏はなぜ暑いのか」理由を分かりやすく解説|涼しい家にする13の暑さ対策も
【9選】暮らしの質を高める生活・家事動線のアイデア

南玄関の間取りに取り入れたい、暮らしの質を高める「生活・家事動線」のアイデアをご紹介します。
①回遊動線(行き止まりのない動線)
回遊動線は家の中をぐるりと回れる動線です。
行き止まりがないため家事や掃除の効率を高めることができます。
また、LDKと玄関のどちらからも洗面脱衣所へアクセスできるなど、複数のルートを確保できるのも回遊動線の大きな特徴です。
②洗濯動線(脱衣所・ランドリールーム・クローゼット)
洗濯する際に使う次のような空間を近づけた動線です。
- 脱衣所
- ランドリールーム
- 外干しスペース
- クローゼット
洗濯時の移動を最小限にすることで、時短につながるのはもちろん、重い洗濯物を運ぶ負担を減らせます。
- 「室内干し」と「外干し」を兼用するならランドリールームと屋外の動線を確保する
- ファミリークローゼットにして家族の服を一気に片付けられるようにする
このように、ライフスタイルに合わせた間取りを取り入れることで、より効率的に洗濯を進められて便利です。
③料理動線(キッチン・パントリー・ダイニング)
料理する際にスムーズに動けるように、次の空間をバランスよく配置するのもおすすめです。
- キッチン
- パントリー
- 冷蔵庫
- ダイニング
パントリーや冷蔵庫をキッチンに近づけると、食材を出し入れする際の移動を少なくできます。
また、ダイニング・キッチンを横並びにして隣接させると、料理の配膳や片付けが効率的です。
④ゴミ出し動線(キッチン・玄関)
週2~3回はゴミ出しをするご家庭が一般的なため、便利な動線を確保しておくことが望ましいです。
ゴミ箱があるキッチンから玄関までの動線を短くすることで、重いゴミを運び出す手間を減らすことができます。
玄関横に土間収納を設けてゴミを置けるようにしておけば、家族にゴミ出しをお願いする際もスムーズです。
<ポイント>
パントリーにゴミ箱を置く場合は、勝手口を設けることで動線が良くなるケースもあります。
勝手口内に小さな土間スペースを設けておくと、一時的にゴミの保管場所やサンダル置き場にできて便利です。
⑤お出かけ動線(クローゼット・洗面所・玄関)
外出する前に使う次のような空間をまとめた動線にすると、準備がスムーズに進みます。
- クローゼット(洋服選び)
- 洗面脱衣所(着替えや身支度)
- 玄関・シューズクローゼット(靴選び)
これらの空間が隣接している間取りは、子育て世帯にも人気が高いです。
例えば、お子様が洗面脱衣所で洗顔や歯磨きしている様子を見守りながら、ファミリークローゼットでご自身の服を選んで着替えることもできます。
毎朝の慌ただしい身支度が快適になる効率の良い動線です。
⑥帰宅動線(シューズクローゼット・クローゼット・洗面脱衣所)
帰宅したときの動きをスムーズにするための動線があると便利です。
- シューズクローゼット(靴をしまう)
- クローゼット(アウターやカバンを置く・部屋着を取る)
- 洗面脱衣所(手洗いうがい・汚れた服を脱ぐ・着替え)
3つの空間が続いている動線がある間取りは、自然と靴やカバンを片付ける流れができるため、きれいな状態の部屋を維持しやすいです。
また、手洗い・うがい・着替えを済ませてからLDKに入るとウイルスや花粉を持ち込みにくくなり、衛生面にもメリットをもたらします。
⑦買い物動線(シューズクローゼット・収納)
次の空間を近づけた動線は、日用品や食材を買い物した際の片付けを楽にします。
- シューズクローゼット
- 日用品収納
- キッチン・パントリー
シューズクローゼットから「収納・パントリー・冷蔵庫」までの距離が近ければ、帰宅後の片付けをスムーズに進められます。
家事の時短につながるだけではなく、重い荷物を運ぶ時間を短くできるため、身体への負担軽減にもつながる点もポイントです。
⑧片付け動線(動線上に収納がある)
廊下などの動線上に収納を設けることも暮らしを便利にするためのアイデアです。
収納に行くための動線をつくるのではなく「移動のついでに物を出し入れできる場所」に収納を配置することで、暮らしの効率性が高まります。
【施工例】

2階の廊下に横長のニッチを造作し、家族共有で使える本棚にした事例です。
スキップフロアで読書を楽しみ、自室に戻る際に片付けるなど、移動ついでに本を出し入れできます。
▷関連コラム:注文住宅の収納アイデア13選|間取り図・実例をもとに使いやすい収納の考え方を解説
⑨おはよう・おやすみ動線(寝室・洗面脱衣所・トイレ・クローゼット)
起床や就寝時の動きを考えた動線は、1日の始まりと終わりをスムーズにし、暮らしのストレスを軽減してくれます。
「寝室・洗面脱衣所・クローゼット」がつながる動線は、起床後すぐに顔を洗って着替えられるため、自然と気持ちの切り替えができます。
寝る前や就寝中、起床後にトイレへ行く方は多いので、寝室とトイレの距離は短くすると便利です。
ただし、使用中の音が気になるケースもあるため、間に収納を設けるなどの工夫をおすすめします。
効率の良い動線がある住まいを建てたいなら、群馬・伊勢崎の「ハグデザイン」へお気軽にご相談ください。
実績豊富な一級建築士がお客様の暮らしに合わせた動線をご提案します。
▷【相談無料】「生活・家事動線の良い南玄関の間取り」に関するご相談はこちら
南玄関の間取りで解説|生活・家事動線の良い住まいのポイント

南玄関の間取り図をもとに、家事動線の良い住まいをつくるためのポイントを解説します。
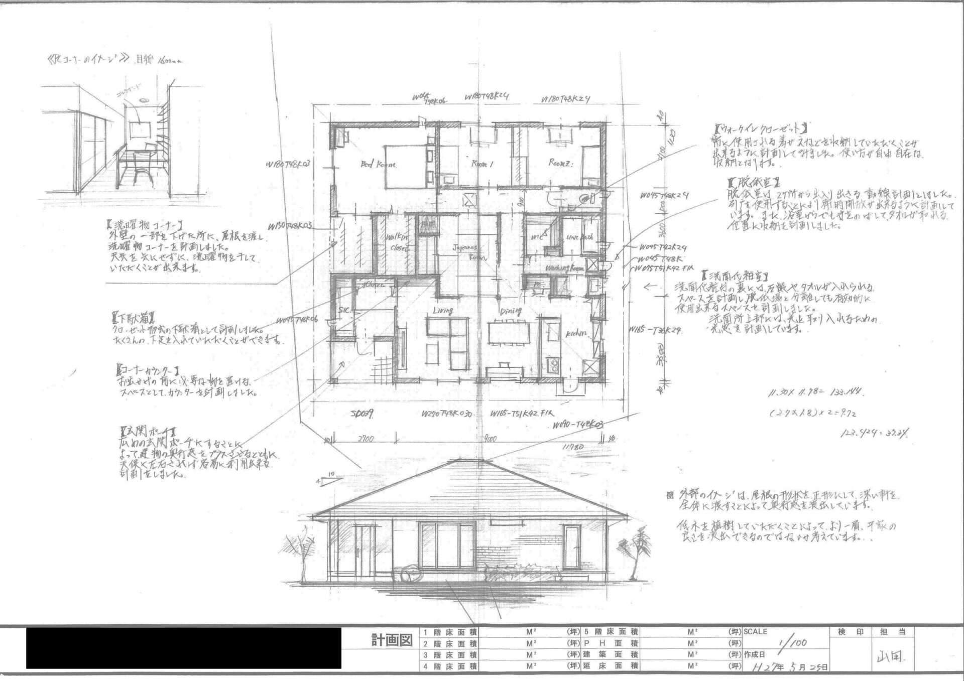
①【2階建て】水回りをまとめた回遊動線の間取り

建物の西側に「洗面脱衣所・ファミリークローク・ランドリールーム」が縦一直線に並ぶ間取りです。
それぞれに2方向の出入口があることで行き来がしやすく、キッチンを含めた回遊動線として活用できます。
洗面脱衣所のすぐ近くにはウッドデッキとつながる窓があるため、外干しする際の動きもスムーズです。
ダイニングとキッチンは横並びにし、料理の配膳・下膳を効率的にできるようにしました。

2階は廊下から入れるウォークインクローゼットを採用した点がポイントです。
階段とクローゼットの動線を短くし、洗濯物を2階に片付ける際の動きを楽にしました。
②【2階建て】ガレージとLDKの動線で買い物も楽々

ビルトインガレージにある勝手口から直接LDKに行ける動線を取り入れた住まいです。
車から重い荷物を運ぶ際も効率的で、すぐに食材を冷蔵庫にしまえます。
脱衣所とランドリールームを兼用にして「洗う→干す」の動きを楽にした点もポイントです。

2階は廊下を最小限にして、居室3部屋と広々としたバルコニーを設けています。
バルコニーは寝室との動線を確保し、就寝前にご夫婦でゆったり過ごしたり布団などを気軽に干したりできる、使い勝手の良い空間に仕上げました。
▷関連コラム:【ガレージハウス】間取り図17選・おしゃれな実例を大公開|平屋・2台・3台も
③【2階建て】家事の効率を高める洗濯動線がある半平屋の家

洗濯をストレスなく進められる動線がある間取りです。
洗面所と室内干しスペースを兼用にして広い空間を確保し、家族の洗濯物をたっぷり干せるようにしました。
また、室内干しスペースはウォークインクローゼットとも隣接しているため、洗濯物を効率的に片付けられます。
寝室を通ってクローゼットに出入りできる間取りにすることで、就寝前後の着替えがスムーズになるだけでなく、リビング・ダイニングからもクローゼットへアクセスしやすくなりました。

寝室やクローゼットを1階に配置した分、2階はコンパクトな間取りです。
階段にはスキップフロアを設け、勉強や読書に集中しつつも、家族とのコミュニケーションを取りやすいスペースをつくりました。
④【平屋】おやすみがスムーズな間取り

就寝時の動線が効率的な間取りです。
寝室内に洗面脱衣所を設けたため、お風呂あがりにそのまま寝ることができます。
住まいの中央にトイレを配置し、寝室とLDKの両方から使いやすい動線を確保した点もポイントです。
生活・家事動線にこだわった南玄関の住まいの実例

生活・家事動線にこだわった南玄関の住まいをご紹介します。
南面に掃き出し窓があるLDKを配置し、室内からテラスや芝庭へつながる動線を確保しました。

キッチンとパントリーは直結させ、食品の収納や管理、調理が楽になるようにしました。
パントリーからはクローゼットにつながっているため、洗濯の片付けや朝の準備もスムーズに行えます。

玄関にはシューズクローゼットと小さな洗面台を設けました。
洗面所まで行かなくても手洗い・うがいが済ませられ、シューズクローゼットにアウターやカバンも収納できます。
ご家族の暮らし方をお伺いしたうえで、効率的な動線や間取りを取り入れた住まいです。
▷施工事例:群馬県伊勢崎市新築注文住宅|低アレルゲンを徹底的に盛り込んだ最高の健康デザイン住宅
ライフスタイルに合う動線を採用したいなら、群馬・伊勢崎の「ハグデザイン」へお気軽にご相談ください。
実績豊富な一級建築士がお客様の暮らしに合わせた間取りをご提案します。
▷【相談無料】「生活・家事動線の良い南玄関の間取り」に関するご相談はこちら
まとめ
南玄関の間取りは明るく開放的な空間をつくりやすいのが特徴ですが、生活や家事を楽にする動線を取り入れることで、より暮らしやすい住まいになります。
洗濯や料理を楽にする動線、お出かけや帰宅時の動きをスムーズにする動線など、ご自身のライフスタイルに合う動線を採用することがポイントです。
お客様の暮らしをしっかりと把握したうえで、南玄関の間取りを活かしつつ、効率的な動線を取り入れてくれる設計力のある住宅会社に相談することをおすすめします。












